【TOP】練馬新築一戸建て情報 > 株式会社レンズのブログ記事一覧 > 石神井公園駅5分!弊社限定物件のご紹介になります!

石神井公園駅5分!弊社限定物件のご紹介になります!

カテゴリ:江郷
こんにちは!

営業の江郷です!

早速ではございますが、弊社限定販売の新築戸建てをご紹介させていただきます(#^.^#)

石神井公園駅より徒歩5分の好立地!
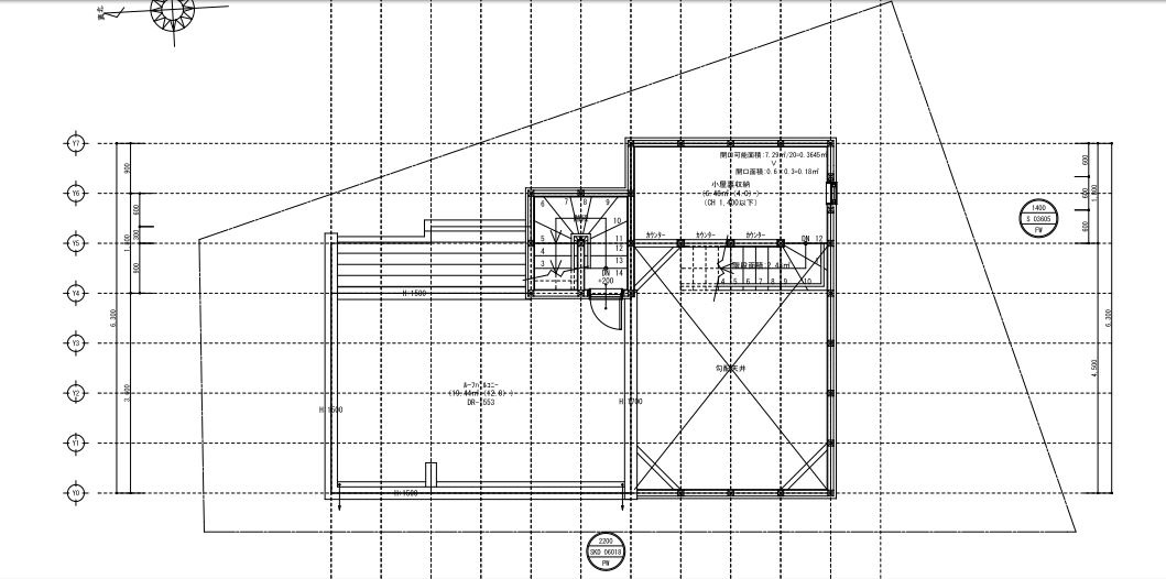
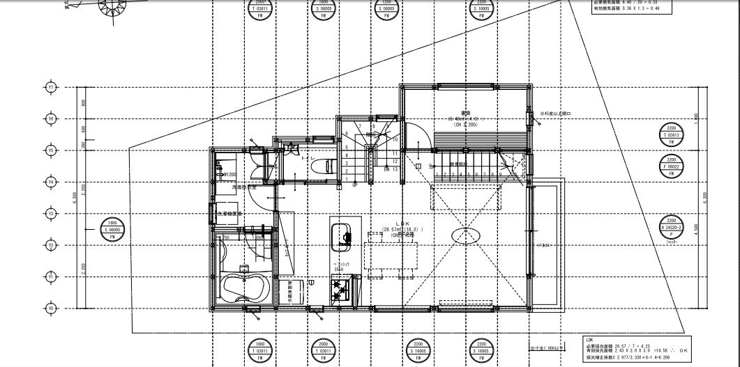
大型3LDK+P+小屋裏+書斎の広々とした間取りになっております!

現在の参考プランを添付させていただきます。




ルーフバルコニーがあったりと建物の仕様も抜群でございます!
一番の魅力は石神井公園が一望できる事です!

また、弊社売主物件になる為、仲介手数料が不要なお買得物件になります(#^.^#)

現況は更地になりますが、建物の大きさ等はご説明可能となっておりますので
ご興味ございましたらお気軽にお申し付けくださいませ。

万全のコロナ対策をしてご案内させていただきます!




≪ 前へ|高水準の標準仕様!弊社売主物件続々!   記事一覧   ☆弊社の建売住宅、仕様のご紹介☆|次へ ≫

江郷 嘉洋 最新記事



江郷 嘉洋

人生の中でも一番と言っていい程大きく大事な買い物になると思います。 その為、購入時期や金銭的な不安もたくさんあると思いますが、悩んだタイミングで是非お気軽にご来店ください! 色々な選択肢の中で、お客様にとって最善の選択が出来るよう一つ一つ全力でお手伝いさせて頂きます!

スタッフ情報を見る

トップへ戻る