━━ JR京浜東北線・エリア希少デザイン新築分譲住宅 ━━
■販売価格:限定4区画/5,480万円~
■所在地 :北区滝野川2丁目
■交 通 :JR京浜東北線「王子」駅 徒歩9分、都営三田線「西巣鴨」駅 徒歩9分
■権 利 :所有権
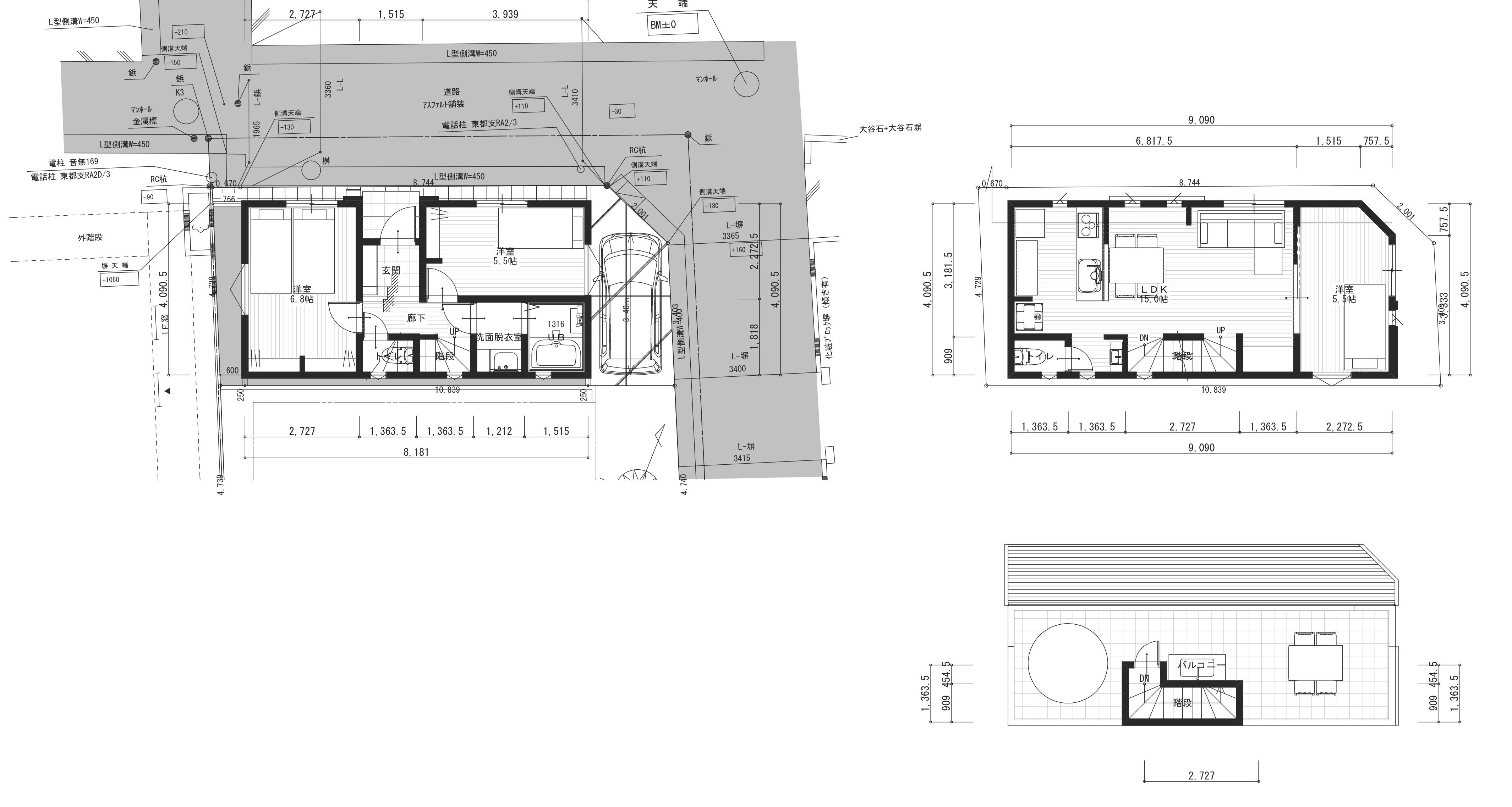
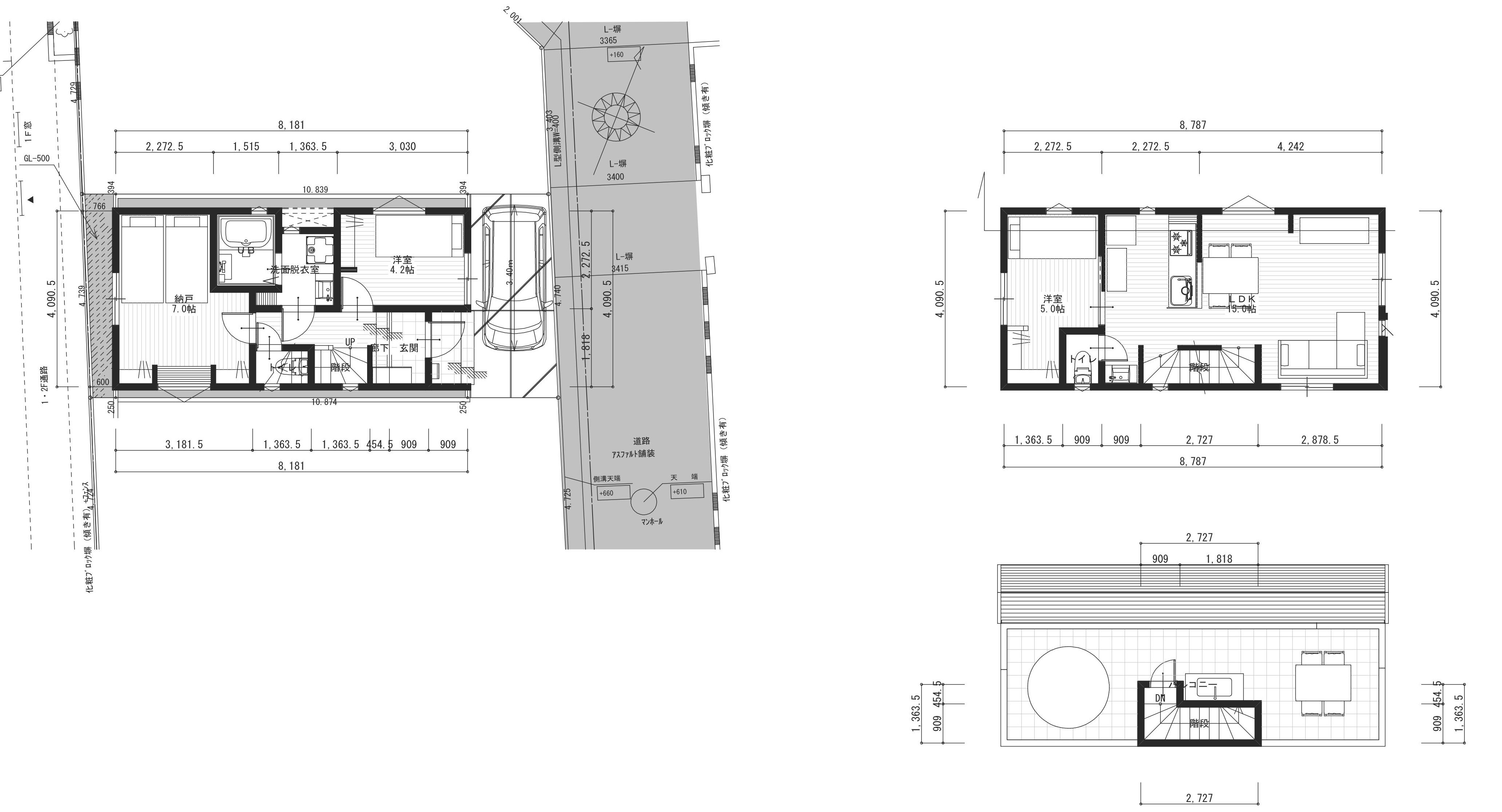
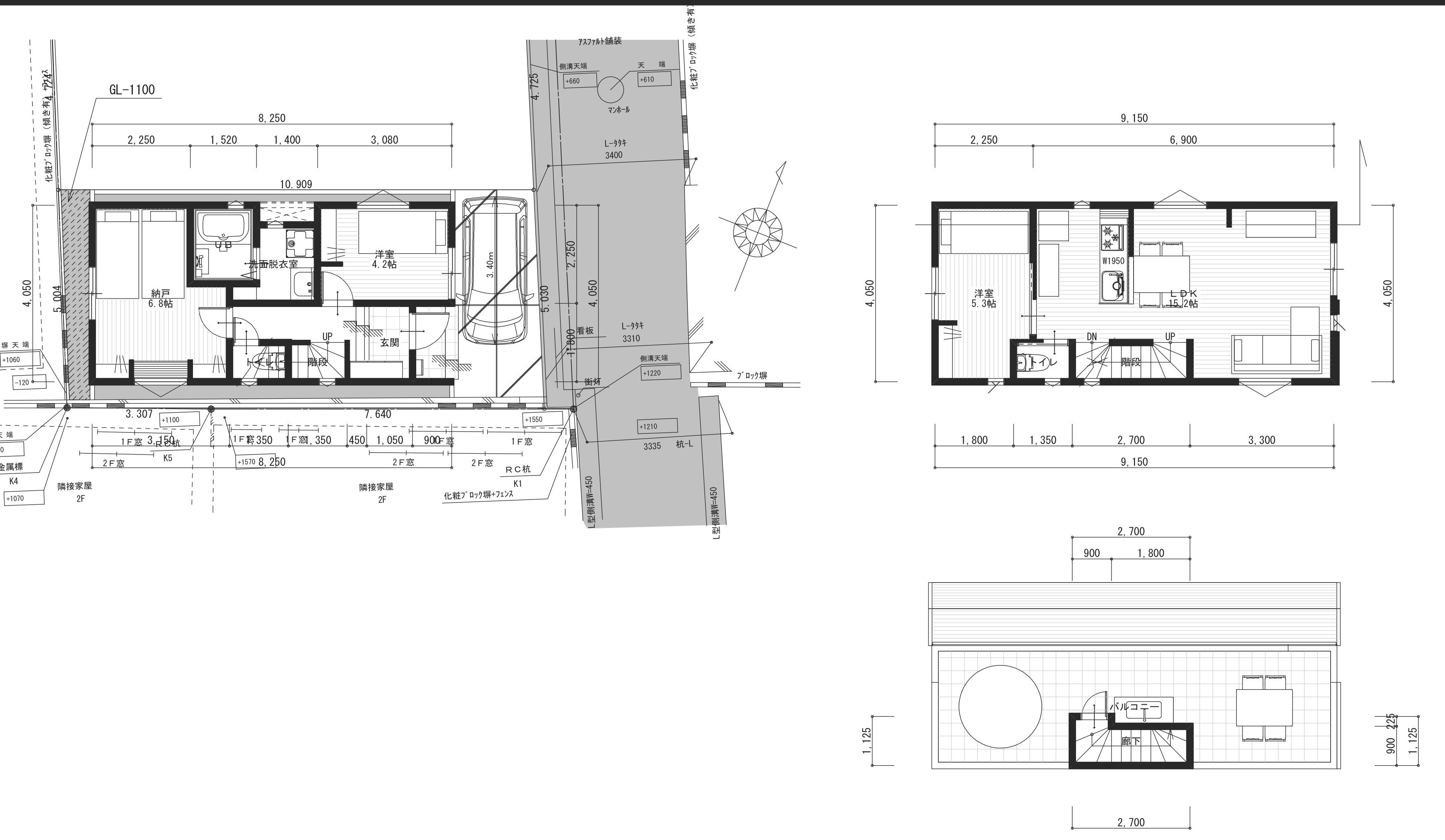
■土地面積:約50.49㎡(約15.27坪)~約54.85㎡(約16.59坪)
■建蔽率 :60% 容積率 :200%(前面道路により 160%)
■建物面積:70.64㎡(21.36坪)~71.88㎡(21.74坪)(添付資料参照)
_/_/_/_/_/_/_/_/_/_/_/_/_/_/_/_/_/_/_/_/_/_/_/_/_/_/_/_/
ご予約制現地見学会受付中です。
※同工務店さんの施工例もお近くにございますので、ご紹介物件の現地と併せてご案内させていただきます。
ルーフバルコニーを設置することができます、世界で一つだけのオリジナリティの溢れたマイホームを建築してみましょう!!
参考プランをご覧になり、ぜひとも夢を膨らましていただけますと幸いです!!




少しでもご興味が持った方、まずは、お気軽にお問合せからお願い致します。
お待ちしております。









