【TOP】練馬新築一戸建て情報 > 練馬区春日町1丁目 中古戸建て
~家族みんながのびのび過ごせる、充実の間取り~
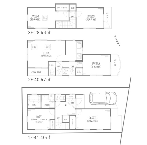
◇家族の時間も自分の時間も大切に。4LDK+1Sのゆとりある間取りで、
快適な暮らしをサポート。収納充実、動線も考えられた設計で毎日をもっと快適に。
◇2025年12月に室内リフォーム済みの住まいです。
内装や設備が一新され、清潔感あふれる快適な空間に生まれ変わりました。
日々の暮らしをより快適にサポートします。
※写真や図と実際の現状とが異なる場合は現状を優先させていただきます。
画像をクリックして視点を操作











(※元利均等方式 金利5.00%まで ※返済年数5~50年まで入力できます)
(※ボーナスは年2回で計算しています。1000万円まで入力できます)
(※物件購入時、その他諸費用が発生する場合がございます)
| 所在地 | 東京都練馬区春日町1丁目 | ||
|---|---|---|---|
| 交通 | |||
| 間取り/詳細 |
4LDK+1S(納戸)/ S 5.5帖 1室/洋室 7.5帖 1室/LDK 13.5帖 1室/洋室 6.0帖 1室/洋室 6.0帖 2室 4LDK+1S |
建物面積(坪数) | 110.53㎡(33.43坪) |
| 価格 | 7,790万円 | ||
| 駐車場/月額料金 | 有(1台)/- | ||
| 土地の敷金/保証金 | -/- | 借地料/借地期間 | -/- |
| 土地権利 | 所有権 | 土地面積(坪数) | 81.48㎡(24.64坪) |
| 傾斜地部分面積 | - | 路地状敷地 | - |
| 私道負担面積/セットバック | -/- | 高圧線下面積 | - |
| 地目/地勢 | 宅地/- | 接道状況 | 一方(東 公道 5.0m) |
| 建ぺい率/容積率 | 60%/300% | 用途地域 | 第一種住居 |
| 都市計画 | 市街化区域 | 種別/構造 | 中古一戸建/木造 |
| 階建 | 3階建 | 築年月(築年数) | 2001年 2月 (築24年) |
| 総区画数/販売区画数 | 1区画/1区画 | 向き | - |
| 現況 | 空家 | その他の法令上の制限 | - |
| 取引態様/引渡時期 | 仲介/即時 | 建築確認番号 | - |
| 物件番号 | 100015437 | 取引条件の有効期限 | 2026年01月23日 |
| リフォーム |
2025年12月 キッチン 浴室 トイレ 壁 床 全室 |
||
| 設備条件 |
|
||
| 備考 |
- 資金計画・ローン等もお気軽にご相談下さい♪ - インターネット上の気になる物件、まとめてお車でご案内します♪ |
||
| 取扱会社 |
|
||
| QRコード |
このQRコードを読み取ることで、スマホでも物件情報を確認できます。 |
||
※地図上に表示される物件の位置は付近住所に所在することを表すものであり、実際の物件所在地とは異なる場合がございます。
練馬区の町名から探す