【TOP】練馬新築一戸建て情報 > 西東京市北町5丁目 新築戸建て 7号棟
~住環境良好な西東京市北町へようこそ!~
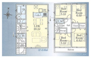
◆リビングと一体感ある、人気の対面キッチンです。
キッチン越しにお料理しながら、お片付けしながらも団らん、今日の報告とお話しを♪
◆玄関横にはSICあり。たくさんの靴はもちろん、ベビーカーや子供の遊び道具も
スッキリしまっておけます♪
◆物件の南側は北宮ノ脇公園になります。
原っぱ広場で芝生が広がり、カラフルな複合遊具や健康器具があります。











(※元利均等方式 金利5.00%まで ※返済年数5~50年まで入力できます)
(※ボーナスは年2回で計算しています。1000万円まで入力できます)
(※物件購入時、その他諸費用が発生する場合がございます)
| 所在地 | 東京都西東京市北町5丁目 | ||
|---|---|---|---|
| 交通 | |||
| 間取り/詳細 | 3LDK/ | 建物面積(坪数) | 90.72㎡(27.44坪) |
| 価格 | 5,390万円 | ||
| 駐車場/月額料金 | 有(1台)/- | ||
| 土地の敷金/保証金 | -/- | 借地料/借地期間 | -/- |
| 土地権利 | 所有権 | 土地面積(坪数) | 115.00㎡(34.78坪) |
| 傾斜地部分面積 | - | 路地状敷地 | - |
| 私道負担面積/セットバック | -/- | 高圧線下面積 | - |
| 地目/地勢 | -/- | 接道状況 | -(東 6.0m) |
| 建ぺい率/容積率 | 40%/80% | 用途地域 | 第一種低層住居専用 |
| 都市計画 | - | 種別/構造 | 新築一戸建/木造 |
| 階建 | 2階建 | 築年月(築年数) | 2026年 2月 (予定) |
| 総区画数/販売区画数 | 7区画/1区画 | 向き | - |
| 現況 | 未完成 | その他の法令上の制限 | 高度地区 |
| 取引態様/引渡時期 | 仲介/相談 | 建築確認番号 | 第SJK-KX255902920号 |
| 物件番号 | 99792178 | 取引条件の有効期限 | 2026年01月24日 |
| 設備条件 |
|
||
| 備考 |
- 資金計画・ローン等もお気軽にご相談下さい♪ - インターネット上の気になる物件、まとめてお車でご案内します♪ |
||
| 取扱会社 |
|
||
| QRコード |
このQRコードを読み取ることで、スマホでも物件情報を確認できます。 |
||
※地図上に表示される物件の位置は付近住所に所在することを表すものであり、実際の物件所在地とは異なる場合がございます。
西東京市北町5丁目 新築戸建て 7号棟に関するこだわり条件から探す