【TOP】練馬新築一戸建て情報 > 西東京市下保谷2丁目 新築戸建て 1号棟
~季節物も思い出も、まるごとしまえるもう一つの空間~
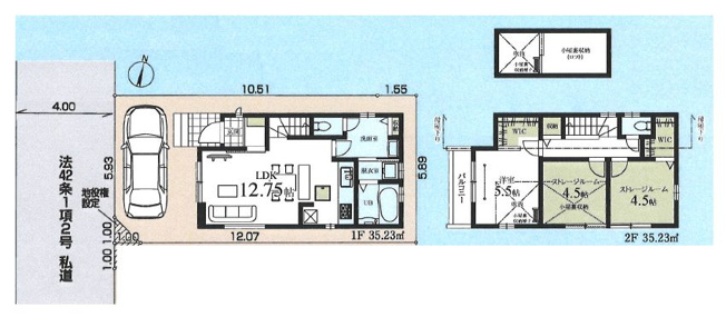
◇小屋裏収納を備えた住まいは、見せない収納を叶える隠れた実力派。
かさばる荷物もラクに収まり、居室はいつも広々。
暮らしの快適さを静かに支えてくれるスペースです。
◇家族が自然と顔を合わせるリビング階段を採用。
LDKを通って移動する間に、ちょっとした会話が生まれる、
あたたかなコミュニケーションのある暮らしを叶えます。
画像をクリックして視点を操作











(※元利均等方式 金利5.00%まで ※返済年数5~50年まで入力できます)
(※ボーナスは年2回で計算しています。1000万円まで入力できます)
(※物件購入時、その他諸費用が発生する場合がございます)
| 所在地 | 東京都西東京市下保谷2丁目 | ||
|---|---|---|---|
| 交通 | |||
| 間取り/詳細 |
1LDK+2S(納戸)/ LDK 12.7帖 1室/洋室 5.5帖 1室/S 4.5帖 2室 1LDK+2S |
建物面積(坪数) | 70.46㎡(21.31坪) |
| 価格 | 4,980万円 | ||
| 駐車場/月額料金 | 有(1台)/- | ||
| 土地の敷金/保証金 | -/- | 借地料/借地期間 | -/- |
| 土地権利 | 所有権 | 土地面積(坪数) | 71.33㎡(21.57坪) |
| 傾斜地部分面積 | - | 路地状敷地 | - |
| 私道負担面積/セットバック |
257.00㎡/- 私道負担割合 : 47/1000 |
高圧線下面積 | - |
| 地目/地勢 | 宅地/- | 接道状況 | 一方(西 私道 4.0m) |
| 建ぺい率/容積率 | 50%/150% | 用途地域 | 第一種中高層住居専用 |
| 都市計画 | 市街化区域 | 種別/構造 | 新築一戸建/木造 |
| 階建 | 2階建 | 築年月(築年数) | 2025年 11月 (新築) |
| 総区画数/販売区画数 | 2区画/1区画 | 向き | - |
| 現況 | 完成済み | その他の法令上の制限 | - |
| 取引態様/引渡時期 | 仲介/相談 | 建築確認番号 | 第25UDI1W建02858号 |
| 物件番号 | 99073285 | 取引条件の有効期限 | 2025年12月23日 |
| 設備条件 |
|
||
| 備考 |
- 資金計画・ローン等もお気軽にご相談下さい♪ - インターネット上の気になる物件、まとめてお車でご案内します♪ |
||
| 取扱会社 |
|
||
| QRコード |
このQRコードを読み取ることで、スマホでも物件情報を確認できます。 |
||
※地図上に表示される物件の位置は付近住所に所在することを表すものであり、実際の物件所在地とは異なる場合がございます。
西東京市下保谷2丁目 新築戸建て 1号棟に関するこだわり条件から探す