【TOP】練馬新築一戸建て情報 > 練馬区豊玉南2丁目 新築戸建て C号棟
~利便性良好なエリアに充実間取りの全3棟~
◇西武新宿線「野方」駅 徒歩13分、
西武池袋線、有楽町線、豊島線、都営大江戸線「練馬」駅 徒歩17分。
2駅5路線利用可能な立地で、目的地によって路線の使い分けもでき、
利便性も良好なエリアになります。
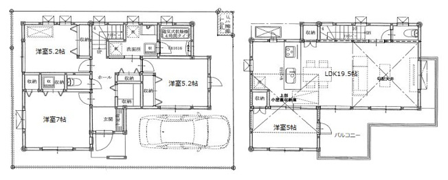
◇小屋裏収納付きで、季節ものや思い出の品の収納など多目的に収納できる、
嬉しいスペースになります☆
※写真や図と実際の現状とが異なる場合は現状を優先させていただきます。











(※元利均等方式 金利5.00%まで ※返済年数5~50年まで入力できます)
(※ボーナスは年2回で計算しています。1000万円まで入力できます)
(※物件購入時、その他諸費用が発生する場合がございます)
| 所在地 | 東京都練馬区豊玉南2丁目 | ||
|---|---|---|---|
| 交通 | |||
| 間取り/詳細 |
3LDK/ 洋室 7.0帖 1室/洋室 5.2帖 1室/洋室 6.2帖 1室/LDK 19.0帖 1室 |
建物面積(坪数) | 97.60㎡(29.52坪) |
| 価格 | 9,580万円 | ||
| 駐車場/月額料金 | 有(1台)/- | ||
| 土地の敷金/保証金 | -/- | 借地料/借地期間 | -/- |
| 土地権利 | 所有権 | 土地面積(坪数) | 97.64㎡(29.53坪) |
| 傾斜地部分面積 | - | 路地状敷地 | - |
| 私道負担面積/セットバック | -/- | 高圧線下面積 | - |
| 地目/地勢 | 宅地/- | 接道状況 | 一方(南東 公道 6.0m) |
| 建ぺい率/容積率 | 70%/200% | 用途地域 | 第一種中高層住居専用/準住居 |
| 都市計画 | 市街化区域 | 種別/構造 | 新築一戸建/木造 |
| 階建 | 2階建 | 築年月(築年数) | 2025年 12月 (予定) |
| 総区画数/販売区画数 | 3区画/1区画 | 向き | - |
| 現況 | 未完成 | その他の法令上の制限 | 宅地造成及び特定盛土等規制法/高度地区/準防火地域/敷地面積最低限度有/日影制限有/再開発促進地区、沿道地区計画区域内(環状7号線桜台・栄町・豊玉地区) |
| 取引態様/引渡時期 | 仲介/相談 | 建築確認番号 | 第24UDI1T建05252号 |
| 物件番号 | 96275816 | 取引条件の有効期限 | 2025年11月28日 |
| 設備条件 |
|
||
| 備考 |
- 資金計画・ローン等もお気軽にご相談下さい♪ - インターネット上の気になる物件、まとめてお車でご案内します♪ |
||
| 取扱会社 |
|
||
| QRコード |
このQRコードを読み取ることで、スマホでも物件情報を確認できます。 |
||
※地図上に表示される物件の位置は付近住所に所在することを表すものであり、実際の物件所在地とは異なる場合がございます。
練馬区の町名から探す