【TOP】練馬新築一戸建て情報 > 練馬区旭町3丁目 新築戸建て
~光あふれる2階LDK、家族の笑顔が集う空間~
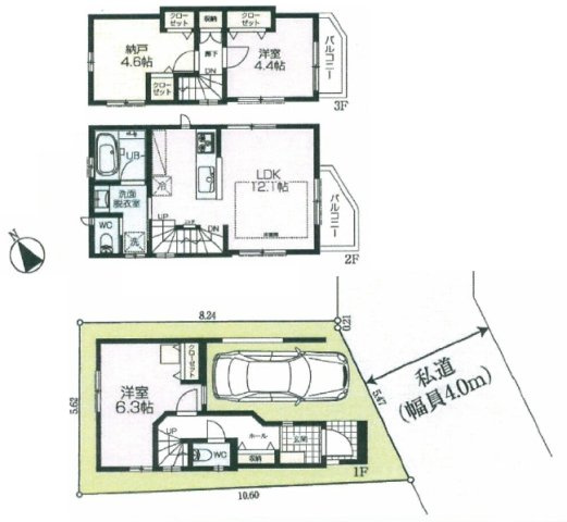
◇明るい光が差し込む2階LDKは家族の集まる憩いの空間。
ゆったりとした間取りで会話も弾み、バルコニーとつながる開放感が、
毎日を心地よく彩ります。
◇不在時でも安心の宅配ボックス完備。
忙しい日々でも荷物の受け取りがスムーズで、時間を気にせず外出可能。
ネット通販や宅配便も手間なく受け取れ、毎日の暮らしをより快適にサポートします。
※写真や図と実際の現状とが異なる場合は現状を優先させていただきます。











(※元利均等方式 金利5.00%まで ※返済年数5~50年まで入力できます)
(※ボーナスは年2回で計算しています。1000万円まで入力できます)
(※物件購入時、その他諸費用が発生する場合がございます)
| 所在地 | 東京都練馬区旭町3丁目 | ||
|---|---|---|---|
| 交通 | |||
| 間取り/詳細 |
2LDK+1S(納戸)/ 洋室 6.3帖 1室/LDK 12.1帖 1室/S 4.6帖 1室/洋室 4.4帖 1室 2LDK+1S |
建物面積(坪数) | 81.05㎡(24.51坪) |
| 価格 | 6,480万円 | ||
| 駐車場/月額料金 | 有(1台)/- | ||
| 土地の敷金/保証金 | -/- | 借地料/借地期間 | -/- |
| 土地権利 | 所有権 | 土地面積(坪数) | 50.84㎡(15.37坪) |
| 傾斜地部分面積 | - | 路地状敷地 | - |
| 私道負担面積/セットバック | 10.56㎡/- | 高圧線下面積 | - |
| 地目/地勢 | 宅地/- | 接道状況 | 一方(東 私道 4.0m) |
| 建ぺい率/容積率 | 60%/160% | 用途地域 | 第一種中高層住居専用 |
| 都市計画 | 市街化区域 | 種別/構造 | 新築一戸建/木造 |
| 階建 | 3階建 | 築年月(築年数) | 2026年 7月 (予定) |
| 総区画数/販売区画数 | 1区画/1区画 | 向き | - |
| 現況 | 未完成 | その他の法令上の制限 | - |
| 取引態様/引渡時期 | 仲介/相談 | 建築確認番号 | 第25UDI1S建04820号 |
| 物件番号 | 102989341 | 取引条件の有効期限 | 2026年04月17日 |
| 設備条件 |
|
||
| 備考 |
- 資金計画・ローン等もお気軽にご相談下さい♪ - インターネット上の気になる物件、まとめてお車でご案内します♪ |
||
| 取扱会社 |
|
||
| QRコード |
このQRコードを読み取ることで、スマホでも物件情報を確認できます。 |
||
※地図上に表示される物件の位置は付近住所に所在することを表すものであり、実際の物件所在地とは異なる場合がございます。
練馬区の町名から探す