【TOP】練馬新築一戸建て情報 > 東久留米市下里2丁目 建築条件付売地 8区画
~住環境良好な東久留米市下里に全8棟の新しい街が誕生~
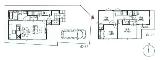
◆建物参考プランは2階建ての4LDKに駐車スペース付の間取りになります。
これを元に仕様や自分好みのカラーセレクトをして、世界に1邸のお家を造りませんか。
◆クリニックシティ下里まで徒歩11分。
眼科、胃腸科、内科、肛門科、耳鼻咽喉科、整形外科のクリニックが集まった
可愛らしい建物、駐車場も広く安心です。











(※元利均等方式 金利5.00%まで ※返済年数5~50年まで入力できます)
(※ボーナスは年2回で計算しています。1000万円まで入力できます)
(※物件購入時、その他諸費用が発生する場合がございます)
| 所在地 | 東京都東久留米市下里2丁目 | ||
|---|---|---|---|
| 交通 | |||
| 価格 | 2,490万円 | ||
| 土地の敷金/保証金 | -/- | 借地料/借地期間 | -/- |
| 土地面積(坪数) | 115.02㎡(34.79坪) | 坪単価 | 71.57万円 |
| 私道負担面積/セットバック | -/- | 高圧線下面積 | - |
| 傾斜地部分面積 | - | 路地状敷地 | - |
| 土地権利 | 所有権 | 接道状況 | 一方(東 5.0m) |
| 都市計画 | 市街化区域 | 用途地域 | 第一種低層住居専用 |
| 建築条件 | 有 | 地目/地勢 | 宅地/- |
| 建ぺい率 | 40% | 容積率 | 80% |
| 総区画数 | 8区画 | 販売区画数 | 1区画 |
| 国土法届出要否 | 不要 | その他の法令上の制限 | 高度地区 |
| 取引態様 | 仲介 | 現況 | - |
| 引渡時期 | 相談 | 引渡条件 | - |
| 最適用途 | - | ||
| 物件番号 | 102941712 | 取引条件の有効期限 | 2026年04月18日 |
| 設備条件 |
|
||
| 備考 |
- 資金計画・ローン等もお気軽にご相談下さい♪ - インターネット上の気になる物件、まとめてお車でご案内します♪ |
||
| 取扱会社 |
|
||
| QRコード |
このQRコードを読み取ることで、スマホでも物件情報を確認できます。 |
||
※建築条件付き土地とは、その土地に建築する建物の建築請負契約が、 一定期間内に成立することを条件として売買される土地のことをいいます。 建築請負契約成立に向けて設計プランを協議するため、 土地購入者が自己の希望する建物の設計協議をするために必要な相当の期間の交渉期間が設定され、 その期間内で希望を満たすプランが実現できるかどうかにより結論を出します。 なお、この期間は概ね3ヶ月程度とされています。 納得のいくプランが出来ず、建築請負契約が成立しない場合、土地売買契約は白紙に戻り、 土地契約にかかった代金(土地代金、手付金など)は名目のいかんに関わらず、全て返却されます。
※地図上に表示される物件の位置は付近住所に所在することを表すものであり、実際の物件所在地とは異なる場合がございます。
東久留米市にある駅から探す