【TOP】練馬新築一戸建て情報 > 練馬区大泉町1丁目 新築戸建て
~家族の気配を感じながら、会話が弾む約17帖の開放的LDK~
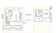
◇約17帖のゆとりあるLDKは、家族が自然と集まる心地よい空間。
対面キッチンからはリビング全体を見渡せるため料理をしながら会話や、
お子様の様子も見守れ、毎日の暮らしに安心とつながりをもたらします。
◇雨の日や夜間でも洗濯物をしっかり乾かせる浴室乾燥機を完備。
カビの発生を抑え、いつでも清潔で快適なバスルームを保ちます。











(※元利均等方式 金利5.00%まで ※返済年数5~50年まで入力できます)
(※ボーナスは年2回で計算しています。1000万円まで入力できます)
(※物件購入時、その他諸費用が発生する場合がございます)
| 所在地 | 東京都練馬区大泉町1丁目 | ||
|---|---|---|---|
| 交通 | |||
| 間取り/詳細 |
3LDK/ LDK 17.5帖 1室/洋室 5.2帖 1室/洋室 9.3帖 1室 |
建物面積(坪数) | 88.05㎡(26.63坪) |
| 価格 | 5,498万円 | ||
| 駐車場/月額料金 | 有(1台)/- | ||
| 土地の敷金/保証金 | -/- | 借地料/借地期間 | -/- |
| 土地権利 | 所有権 | 土地面積(坪数) | 94.10㎡(28.46坪) |
| 傾斜地部分面積 | - | 路地状敷地 | - |
| 私道負担面積/セットバック | 18.02㎡/- | 高圧線下面積 | - |
| 地目/地勢 | 宅地/- | 接道状況 | 一方(南東 4.0m) |
| 建ぺい率/容積率 | 50%/100% | 用途地域 | 第一種低層住居専用 |
| 都市計画 | 市街化区域 | 種別/構造 | 新築一戸建/木造 |
| 階建 | 2階建 | 築年月(築年数) | 2026年 2月 (予定) |
| 総区画数/販売区画数 | 1区画/1区画 | 向き | - |
| 現況 | 未完成 | その他の法令上の制限 | 宅地造成及び特定盛土等規制法/高度地区/準防火地域/高さ最高限度有/敷地面積最低限度有/日影制限有/大泉風致地区、土地区画整理事業を施工すべき区域、都市計画公園 |
| 取引態様/引渡時期 | 仲介/相談 | 建築確認番号 | 第25UDI1W建07638号 |
| 物件番号 | 100684694 | 取引条件の有効期限 | 2026年02月20日 |
| 設備条件 |
|
||
| 備考 |
- 資金計画・ローン等もお気軽にご相談下さい♪ - インターネット上の気になる物件、まとめてお車でご案内します♪ |
||
| 取扱会社 |
|
||
| QRコード |
このQRコードを読み取ることで、スマホでも物件情報を確認できます。 |
||
※地図上に表示される物件の位置は付近住所に所在することを表すものであり、実際の物件所在地とは異なる場合がございます。
練馬区大泉町1丁目 新築戸建てに関するこだわり条件から探す
練馬区の町名から探す