【TOP】練馬新築一戸建て情報 > 板橋区徳丸4丁目 新築戸建て
~笑顔溢れる家族の場所・板橋区徳丸に誕生~
◆空間の主役となるアイランドキッチンが、LDK全体に洗練された印象を演出。
機能性と美しさを両立し、住まう人の感性に応える上質な暮らしを叶えます。
◆広々とした洗面所にはクローゼットも付いてます♪
混みあう朝の支度もゆとりあるスペースで、ゆとりある支度を。
◆映画館も入っているイオン板橋ショッピングセンターが東武練馬駅前にあり♪











(※元利均等方式 金利5.00%まで ※返済年数5~50年まで入力できます)
(※ボーナスは年2回で計算しています。1000万円まで入力できます)
(※物件購入時、その他諸費用が発生する場合がございます)
| 所在地 | 東京都板橋区徳丸4丁目 | ||
|---|---|---|---|
| 交通 | |||
| 間取り/詳細 |
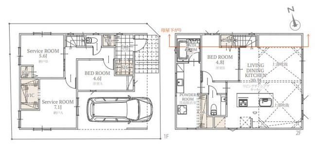
2LDK+2S(納戸)/ S 5.6帖 1室/S 7.1帖 1室/洋室 4.6帖 1室/洋室 4.8帖 1室/LDK 20.3帖 1室 |
建物面積(坪数) | 117.85㎡(35.64坪) |
| 価格 | 7,580万円 | ||
| 駐車場/月額料金 | 有(1台)/- | ||
| 土地の敷金/保証金 | -/- | 借地料/借地期間 | -/- |
| 土地権利 | 所有権 | 土地面積(坪数) | 87.17㎡(26.36坪) |
| 傾斜地部分面積 | - | 路地状敷地 | - |
| 私道負担面積/セットバック | -/- | 高圧線下面積 | - |
| 地目/地勢 | -/- | 接道状況 | 一方(東 私道 4.0m) |
| 建ぺい率/容積率 | 60%/200% | 用途地域 | 第一種住居 |
| 都市計画 | 市街化区域 | 種別/構造 | 新築一戸建/木造 |
| 階建 | 2階建 | 築年月(築年数) | 2026年 2月 (予定) |
| 総区画数/販売区画数 | 1区画/1区画 | 向き | - |
| 現況 | 未完成 | その他の法令上の制限 | 高度地区 |
| 取引態様/引渡時期 | 仲介/相談 | 建築確認番号 | 第AI建築確認00-2500654号 |
| 物件番号 | 100576035 | 取引条件の有効期限 | 2026年02月21日 |
| 設備条件 |
|
||
| 備考 |
- 資金計画・ローン等もお気軽にご相談下さい♪ - インターネット上の気になる物件、まとめてお車でご案内します♪ |
||
| 取扱会社 |
|
||
| QRコード |
このQRコードを読み取ることで、スマホでも物件情報を確認できます。 |
||
※地図上に表示される物件の位置は付近住所に所在することを表すものであり、実際の物件所在地とは異なる場合がございます。
板橋区徳丸4丁目 新築戸建てに関するこだわり条件から探す