【TOP】練馬新築一戸建て情報 > 板橋区若木3丁目 新築戸建て
~家族で日常を楽しむエリア、板橋区若木~
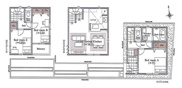
◆通りの目線が気にならないプライベート感と日当り確保の2階リビング。
家族がゆったり寛げる空間です♪
◆サンゼリゼまで徒歩11分。ダイエーやレストラン、薬局や動物病院など
幅広いお店が入るショッピング施設、イベントも開かれています!
◆徒歩9分圏内には中台しいの木公園、西台公園、中台公園と公園が点在!
お子様が飽きずにお外で遊べる環境です。











(※元利均等方式 金利5.00%まで ※返済年数5~50年まで入力できます)
(※ボーナスは年2回で計算しています。1000万円まで入力できます)
(※物件購入時、その他諸費用が発生する場合がございます)
| 所在地 | 東京都板橋区若木3丁目 | ||
|---|---|---|---|
| 交通 | |||
| 間取り/詳細 | 3LDK/ | 建物面積(坪数) | 69.98㎡(21.16坪) |
| 価格 | 4,480万円 | ||
| 駐車場/月額料金 | -/- | ||
| 土地の敷金/保証金 | -/- | 借地料/借地期間 | -/- |
| 土地権利 | 所有権 | 土地面積(坪数) | 44.07㎡(13.33坪) |
| 傾斜地部分面積 | - | 路地状敷地 | - |
| 私道負担面積/セットバック |
57.00㎡/- 私道負担割合 : 3/20 |
高圧線下面積 | - |
| 地目/地勢 | -/- | 接道状況 | 一方(北西 私道 4.0m) |
| 建ぺい率/容積率 | 60%/200% | 用途地域 | 第一種中高層住居専用 |
| 都市計画 | - | 種別/構造 | 新築一戸建/木造 |
| 階建 | 3階建 | 築年月(築年数) | 2026年 2月 (予定) |
| 総区画数/販売区画数 | 1区画/1区画 | 向き | - |
| 現況 | 未完成 | その他の法令上の制限 | - |
| 取引態様/引渡時期 | 仲介/相談 | 建築確認番号 | 第FBC建確済25-0362号 |
| 物件番号 | 100106972 | 取引条件の有効期限 | 2026年01月24日 |
| 設備条件 |
|
||
| 備考 |
- 資金計画・ローン等もお気軽にご相談下さい♪ - インターネット上の気になる物件、まとめてお車でご案内します♪ |
||
| 取扱会社 |
|
||
| QRコード |
このQRコードを読み取ることで、スマホでも物件情報を確認できます。 |
||
※地図上に表示される物件の位置は付近住所に所在することを表すものであり、実際の物件所在地とは異なる場合がございます。