【TOP】練馬新築一戸建て情報 > 板橋区富士見町 新築戸建て 3号棟
~あったら良いな!が盛りだくさんの新築です~
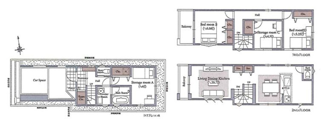
◆通りの目線が気にならないプライベート感とたっぷりの日当りを確保の
2階リビング。家族がゆったり寛げる居心地の良い空間です♪
◆浄水器一体型のキッチン水栓。
お水を買わなくても毎日キレイなお水が飲めます!お米を炊くのもキレイなお水で♪
◆徒歩10分圏内に保育園、幼稚園、学区域の富士見台小学校、志村第一中学校があります。
教育環境整ってます!











(※元利均等方式 金利5.00%まで ※返済年数5~50年まで入力できます)
(※ボーナスは年2回で計算しています。1000万円まで入力できます)
(※物件購入時、その他諸費用が発生する場合がございます)
| 所在地 | 東京都板橋区富士見町 | ||
|---|---|---|---|
| 交通 | |||
| 間取り/詳細 |
2LDK+2S(納戸)/ S 4.6帖 1室/LDK 20.7帖 1室/洋室 6.0帖 1室/S 4.5帖 1室/洋室 5.2帖 1室 |
建物面積(坪数) | 120.28㎡(36.38坪) |
| 価格 | 7,980万円 | ||
| 駐車場/月額料金 | 有(1台)/- | ||
| 土地の敷金/保証金 | -/- | 借地料/借地期間 | -/- |
| 土地権利 | 所有権 | 土地面積(坪数) | 65.00㎡(19.66坪) |
| 傾斜地部分面積 | - | 路地状敷地 | - |
| 私道負担面積/セットバック | -/- | 高圧線下面積 | - |
| 地目/地勢 | 宅地/- | 接道状況 | 一方(西 公道 5.0m) |
| 建ぺい率/容積率 | 60%/300% | 用途地域 | 第一種住居 |
| 都市計画 | 市街化区域 | 種別/構造 | 新築一戸建/木造 |
| 階建 | 3階建 | 築年月(築年数) | 2026年 1月 (予定) |
| 総区画数/販売区画数 | 4区画/1区画 | 向き | - |
| 現況 | 未完成 | その他の法令上の制限 | 高度地区/準防火地域 |
| 取引態様/引渡時期 | 仲介/相談 | 建築確認番号 | 第25UDI1W建03106号 |
| 物件番号 | 100105598 | 取引条件の有効期限 | 2026年01月24日 |
| 設備条件 |
|
||
| 備考 |
- 資金計画・ローン等もお気軽にご相談下さい♪ - インターネット上の気になる物件、まとめてお車でご案内します♪ |
||
| 取扱会社 |
|
||
| QRコード |
このQRコードを読み取ることで、スマホでも物件情報を確認できます。 |
||
※地図上に表示される物件の位置は付近住所に所在することを表すものであり、実際の物件所在地とは異なる場合がございます。
板橋区富士見町 新築戸建て 3号棟に関するこだわり条件から探す